Onde colocar ATI
Onde colocar ATI
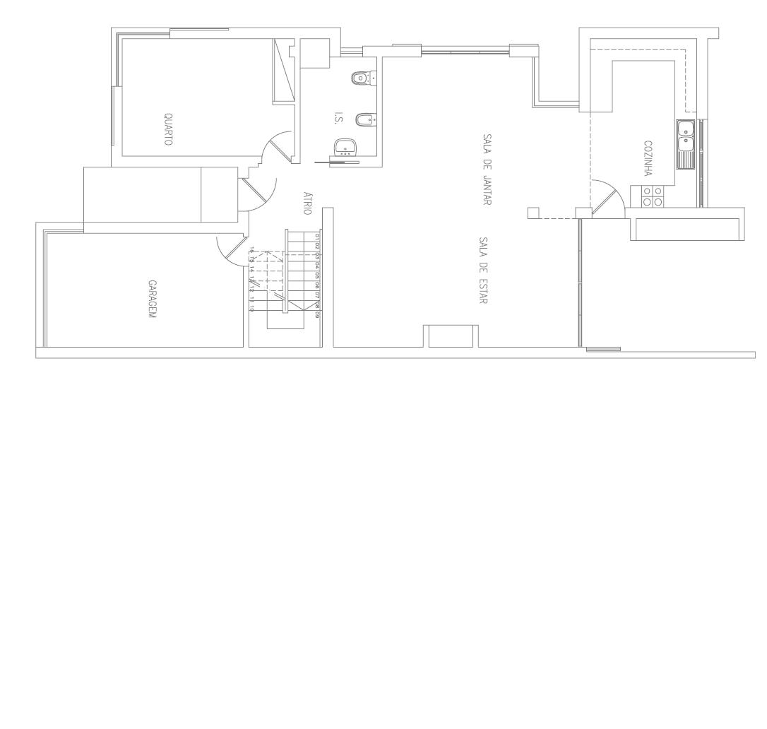
Boa tarde, gostava que me dessem a vossa opinião, sobre o local a colocar o ATI, nesta vivenda.
junto envio planta anexa.
É que junto à entrada não tenho espaço.
junto envio planta anexa.
É que junto à entrada não tenho espaço.
- Anexos
-
- ited.JPG
- (45.28 KiB) Transferido 434 vezes
Cumprimentos,
Xmassas
Já dizia um vizinho meu há uns bons anos atrás:
" Aí, ó menino olha que a electricidade é tramada, morde sem nós a vermos"

Xmassas
Já dizia um vizinho meu há uns bons anos atrás:
" Aí, ó menino olha que a electricidade é tramada, morde sem nós a vermos"
- Cipriano
- Quadro de Honra

- Mensagens: 579
- Registado: 08 out 2007, 19:16
- Localização: Algures no Planeta Terra
- Agradecimento recebido: 1 vez
- Contacto:
Re: Onde colocar ATI
Porque não atrás da porta da Garagem.
O Scalabitano Alojamento ideal para o seu website
Blog Pessoal
Santarem Digital O Portal mais completo sobre Santarém
Executo Projectos de: Electricidade, Gás, Águas, Ited, Solar Térmico, Solar Fotovoltaico, IMI, Arquitectura
Blog Pessoal
Santarem Digital O Portal mais completo sobre Santarém
Executo Projectos de: Electricidade, Gás, Águas, Ited, Solar Térmico, Solar Fotovoltaico, IMI, Arquitectura
- Varejo
- Team Apoio

- Mensagens: 4055
- Registado: 14 jun 2007, 01:17
- Localização: Lx
- Enviou: 2 vezes
- Agradecimento recebido: 14 vezes
Re: Onde colocar ATI
Boas, como na parede da sala poderá ficar inestético, o melhor será como o cipriano disse!!!
Teoria é quando se sabe tudo mas nada funciona. Prática é quando tudo funciona mas ninguém sabe porquê... aqui alia-se a teoria à prática... nada funciona e ninguém sabe porquê!!
Re: Onde colocar ATI
Pois como devem imaginar a obra ainda está em fase de projecto e para a parte eléctrica não vai ter projecto.
Vou optar pela sugestão do Cipriano.
Obrigado pela ajuda.
Vou optar pela sugestão do Cipriano.
Obrigado pela ajuda.
Cumprimentos,
Xmassas
Já dizia um vizinho meu há uns bons anos atrás:
" Aí, ó menino olha que a electricidade é tramada, morde sem nós a vermos"

Xmassas
Já dizia um vizinho meu há uns bons anos atrás:
" Aí, ó menino olha que a electricidade é tramada, morde sem nós a vermos"
- Varejo
- Team Apoio

- Mensagens: 4055
- Registado: 14 jun 2007, 01:17
- Localização: Lx
- Enviou: 2 vezes
- Agradecimento recebido: 14 vezes
Re: Onde colocar ATI
Boas, não tem projecto eléctrico, mas alguém vai ter de colocar o quadro eléctrico mesmo sem sitio para ele, é o costume em Portugal, quem vier atrás que feche a porta!!!xmassas Escreveu:Pois como devem imaginar a obra ainda está em fase de projecto e para a parte eléctrica não vai ter projecto.
Vou optar pela sugestão do Cipriano.
Obrigado pela ajuda.
Teoria é quando se sabe tudo mas nada funciona. Prática é quando tudo funciona mas ninguém sabe porquê... aqui alia-se a teoria à prática... nada funciona e ninguém sabe porquê!!
Re: Onde colocar ATI
Esse projecto foi aprovado? é que aqui para os meus lados tem que existir uma antecâmara entre a garagem e outra divisão por causa dos gases, isto é se a garagem tiver portão!
Se a garagem tiver portão e se o projecto estiver aprovado o melhor é ficar tudo lá... quadro e ATI
Se a garagem tiver portão e se o projecto estiver aprovado o melhor é ficar tudo lá... quadro e ATI
-
migjac
- Velha Guarda

- Mensagens: 571
- Registado: 08 mai 2008, 17:52
- Enviou: 6 vezes
- Agradecimento recebido: 17 vezes
Re: Onde colocar ATI
Boa tarde,
Vou aproveitar este tópico para colocar uma questão que tem a ver com este assunto.
Estou a fazer o projeto ited de uma moradia que será minha. A moradia tem uma garagem em cave, r/s e 1º andar.
Posso colocar o quadro elétrico e o ATI na garagem? Ou sou obrigado e colocar na entrada da casa?
Tenho que colocar um quadro parcial em cada piso da casa?
Vou aproveitar este tópico para colocar uma questão que tem a ver com este assunto.
Estou a fazer o projeto ited de uma moradia que será minha. A moradia tem uma garagem em cave, r/s e 1º andar.
Posso colocar o quadro elétrico e o ATI na garagem? Ou sou obrigado e colocar na entrada da casa?
Tenho que colocar um quadro parcial em cada piso da casa?
-
andrelima14
- Curioso

- Mensagens: 62
- Registado: 20 jul 2017, 11:26
- Localização: Porto
- Enviou: 13 vezes
- Agradecimento recebido: 7 vezes
Re: Onde colocar ATI
Deverá colocar o ATI e o Quadro geral na entrada da habitação e um quadro parcial por piso.
-
migjac
- Velha Guarda

- Mensagens: 571
- Registado: 08 mai 2008, 17:52
- Enviou: 6 vezes
- Agradecimento recebido: 17 vezes
Re: Onde colocar ATI
Muito obrigado. Mesmo que o piso 1 tenha apenas 2 quartos tenho que colocar o quadro parcial, correto?andrelima14 Escreveu: 20 ago 2018, 13:31 Deverá colocar o ATI e o Quadro geral na entrada da habitação e um quadro parcial por piso.
-
lcmmonteiro
- Técnico Dedicado

- Mensagens: 961
- Registado: 19 abr 2017, 15:34
- Localização: Barreiro
- Enviou: 12 vezes
- Agradecimento recebido: 83 vezes
- Contacto:
Re: Onde colocar ATI
Cada piso deverá ter um quadro que desempenhe para esse piso a função de quadro de entrada.
-
dsrsantos
- Velha Guarda

- Mensagens: 281
- Registado: 11 dez 2009, 16:34
- Localização: Leiria
- Enviou: 11 vezes
- Agradecimento recebido: 30 vezes
Re: Onde colocar ATI
Manual ITEDO local escolhido para a instalação do ATI deve ter adequadas condições de ventilação e acessibilidade.
Sempre que possível deve ser considerada a possibilidade de instalação do ATI num ponto central do fogo, com as TT a distâncias equivalentes.
-
Mario Lopes
- Velha Guarda

- Mensagens: 250
- Registado: 12 jan 2011, 14:37
- Localização: Telheiras - Lisboa
- Agradecimento recebido: 14 vezes
Re: Onde colocar ATI
Meus caros. Caso alguém instale um Q.E. de uma fracção fora do Hall de entrada, ou que para aceder ao mesmo, tenha que transpor 2 portas, incluindo a de entrada, terá que obrigatoriamente instalar uma botoneira de corte geral na entrada.