Boa noite a todos,
Comprei um espaço comercial de onde faz parte mais 5 fracções, o espaço estava ha mais de 10 anos sem energia.
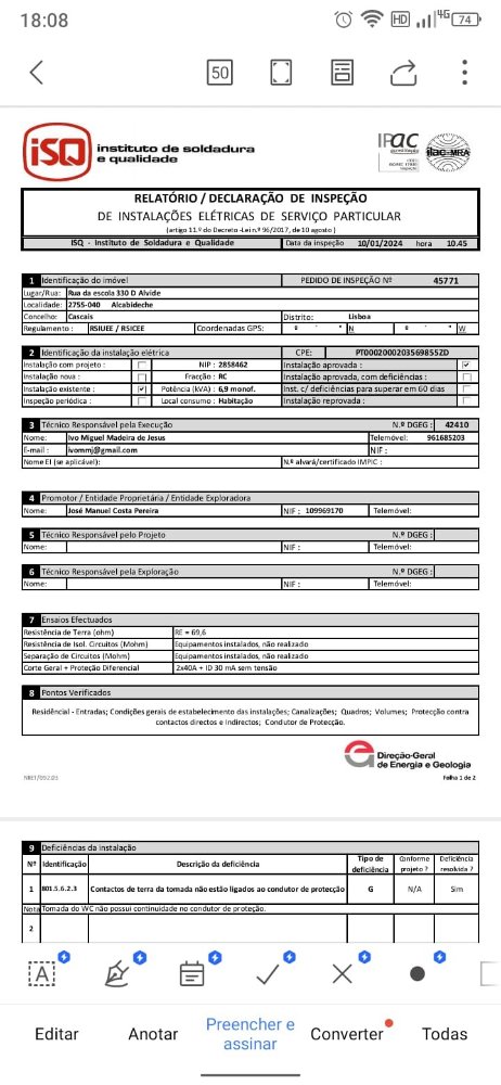
Fizemos o projeto eletrotécnico e o mesmo foi certificado pela empresa ISQ.
Passados 72 horas do aval ser positivo da inspeção fizemos o pedido a Edp que logo a seguir nos diz para contactar E-redes porque temos mais uma pendencia, seguimos para a E-redes e nos diz ( Anexo documento) que temos que pedir no ramal para as 6 fraççoes onde todas tem energia em problemas.
A questões que coloco sao;
O espaço teve energia durante mais de 40 anos e esta licenciada para comercio e so devido ter ficado muito tempo desligada tenho que trocar o ramal que alimenta todas as frações?
VAle a pena ir na ERSE fazer uma reclamaçao ?
Zona de Cascais.
Baixa contador por inatividade
-
Brunokalil1
- Faça a sua apresentação

- Mensagens: 9
- Registado: 23 out 2023, 13:55
- Profissão: estafeta
- Localização: cascais
-
Brunokalil1
- Faça a sua apresentação

- Mensagens: 9
- Registado: 23 out 2023, 13:55
- Profissão: estafeta
- Localização: cascais
Re: Baixa contador por inatividade
Desculpe mas eu escrevi mal, todas as outras 5 facções nao tem problema de energia.
Gostava de ter um orçamento para o que a E redes estao a pedir ai.
Gostava de ter um orçamento para o que a E redes estao a pedir ai.
-
amoreira
- Quadro de Honra

- Mensagens: 1261
- Registado: 22 out 2007, 22:10
- Localização: Lisboa
- Enviou: 4 vezes
- Agradecimento recebido: 99 vezes
Re: Baixa contador por inatividade
Boas
Se a instalação tem projeto a primeira coisa a fazer e contactar esse técnico que fez o projeto ele é a pessoa mais indicada para o ajudar uma vez que é quem deve conhecer melhor o historial.
Expeculando ... O local do ponto de entrega de energia manteve-se ou foi alterado ?
Houve aumento de potencia da instalação ?
Se a instalação tem projeto a primeira coisa a fazer e contactar esse técnico que fez o projeto ele é a pessoa mais indicada para o ajudar uma vez que é quem deve conhecer melhor o historial.
Expeculando ... O local do ponto de entrega de energia manteve-se ou foi alterado ?
Houve aumento de potencia da instalação ?
Projectista de Instalações Elétricas, Telecomunicações e Segurança Eletrónica
-
Brunokalil1
- Faça a sua apresentação

- Mensagens: 9
- Registado: 23 out 2023, 13:55
- Profissão: estafeta
- Localização: cascais
Re: Baixa contador por inatividade
Boas Sr Amoreira,
Tem projeto e vou anexa lo, o local manteve se , o que foi alterado foi o numero cpe.
Nao houve aumento de potencia, manteve se o pedido igual ao que estava 6,9 kwa.
O técnico que fez o projeto diz que nunca passou por algo assim devido aquilo estar fraccionado deste 1984 e todos sempre tiveram energia sem alteração do projeto original das fracções.
Como o meu contador ficou muitos anos sem fornecimento a antiga EDP deu baixa no contador.
Tem projeto e vou anexa lo, o local manteve se , o que foi alterado foi o numero cpe.
Nao houve aumento de potencia, manteve se o pedido igual ao que estava 6,9 kwa.
O técnico que fez o projeto diz que nunca passou por algo assim devido aquilo estar fraccionado deste 1984 e todos sempre tiveram energia sem alteração do projeto original das fracções.
Como o meu contador ficou muitos anos sem fornecimento a antiga EDP deu baixa no contador.
- Anexos
-
- Ficha Electrotecnica Inst Elect R Escola alvide 330 Alcabideche 26Out2023_000028.pdf
- (1.75 MiB) Transferido 112 vezes
-
Brunokalil1
- Faça a sua apresentação

- Mensagens: 9
- Registado: 23 out 2023, 13:55
- Profissão: estafeta
- Localização: cascais
-
ENERGY
- Team Apoio

- Mensagens: 5620
- Registado: 18 fev 2009, 21:21
- Localização: Portugal de Norte a Sul
- Enviou: 28 vezes
- Agradecimento recebido: 208 vezes
Re: Baixa contador por inatividade
BoasBrunokalil1 Escreveu: 22 jan 2024, 21:54 Boa noite a todos,
Comprei um espaço comercial de onde faz parte mais 5 fracções, o espaço estava ha mais de 10 anos sem energia.
Fizemos o projeto eletrotécnico e o mesmo foi certificado pela empresa ISQ.
Passados 72 horas do aval ser positivo da inspeção fizemos o pedido a Edp que logo a seguir nos diz para contactar E-redes porque temos mais uma pendencia, seguimos para a E-redes e nos diz ( Anexo documento) que temos que pedir no ramal para as 6 fraççoes onde todas tem energia em problemas.
A questões que coloco sao;
O espaço teve energia durante mais de 40 anos e esta licenciada para comercio e so devido ter ficado muito tempo desligada tenho que trocar o ramal que alimenta todas as frações?
VAle a pena ir na ERSE fazer uma reclamaçao ?
Zona de Cascais.
Ao que tudo indica, quando fizeram o Projeto Eletrotécnico o Engº não se deve ter deslocado ao local, não deve ter visto as condições do ramal e que o mesmo alimentava outras frações, e agora o cliente terá de fazer novo ponto de entrega de acordo com a potência total do edifício, etc, etc.
Cpts.
Energy
Energy